| Автор | Сообщение |
|
stunit
|
Доброго дня!
Медиаплеер Samsung HT-TZ315 (HT-TZ315R/XER) не включается блок питания ORTP-616 (X-30/Z-310).
Кратко о произошедшем: подали 380В на вход питания.
Взорвалась микросхема ICM1 -- DM0365RB, которая часто так делает, судя по сообщениям других авторов.
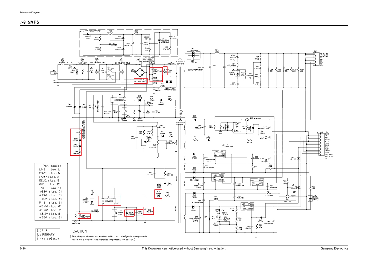
Прикрепил картинку схемы. Красным выделил элементы, которые заменил.
Включал через лампочку на 220В 40Вт (вместо предохранителя).
При включении лампа включается и гаснет.
На электролитах CL5 и CL6 есть напряжение. Дальше пытаюсь найти причину не запускаться
Со вторичных обмоток трансформаторов показывает нули.
Буду рад любой подсказке, в какую сторону копать.
| Samsung HT-TZ315_copy.jpg |
| Описание: |
|
| Размер файла: |
320.67 КБ |
| Просмотрено: |
996 раз(а) |

|
|
|
vadim3008
Мастер Добрых Дел
Сообщения: 5819
|
stunit, ссылку на схему давай!
ДОБАВЛЕНО 20/01/2019 16:27
причина,замены,обозначенных элементов? |
|
|
stunit
|
| vadim3008 писал: | stunit, ссылку на схему давай!
ДОБАВЛЕНО 20/01/2019 16:27
причина,замены,обозначенных элементов? |
Один электролит вздулся, решил заменить оба.
SA1 U-4B 230V - разрядник - показался треснутым.
RM1 не прозванивался. Заодно и ZDM1-ZDM3 заменил.
ICM1 -- DM0365RB - разорвало. Поэтому заменил все, что рядом было ))
Ссылка на картинку -- https://cloud.mail.ru/public/F7uA/Mpnu1xCft |
|
vadim3008
Мастер Добрых Дел
Сообщения: 5819
|
| stunit,приборы есть?Сколько на 2-ноге шим? |
|
|
stunit
|
| vadim3008 писал: | | stunit,приборы есть?Сколько на 2-ноге шим? |
Из приборов -- мультиметр
На 2-й ноге -- ноль. |
|
vadim3008
Мастер Добрых Дел
Сообщения: 5819
|
| stunit, ну так смотри почему! |
|
|
stunit
|
| vadim3008 писал: | | stunit, ну так смотри почему! |
вы намекаете, что микросхема 0365 неживая? |
|
mehanik93
Завсегдатай
Сообщения: 531
|
stunit, нет - это намёк .... мастеру отнести  |
|
|
stunit
|
| mehanik93 писал: | stunit, нет - это намёк .... мастеру отнести  |
у мастера он 2 недели пролежал, попылился )) |
|
mehanik93
Завсегдатай
Сообщения: 531
|
stunit, учи мат часть, а то он у тебя до твоих похорон пролежит .  |
|
vadim3008
Мастер Добрых Дел
Сообщения: 5819
|
stunit, движения к ремонту какие нибудь будут?Или мы должны тебе рассказывать что делать!
Тестер в руки и вперёд! |
|
|
stunit
|
| vadim3008 писал: | stunit, движения к ремонту какие нибудь будут?Или мы должны тебе рассказывать что делать!
Тестер в руки и вперёд! |
Я здесь ))
Какая обстановка на сегодня.
Не той стороной впаял DM3. Изменил направление. Теперь на выводе 2 FSDM0365 стабильные 10В.
На выводах 6,7,8 = 0В
На конденсаторах CL6 и CL5 -- 144В и 158В.
Начал проверять входное напряжение на ICA1 KA5Q1265RF = 0В
От нее проверил RA2 = до него 0В, т.е. с коллектора QM1 ничего не приходит (как на базу и эммитер тоже).
Посмотрел PC817:
На PCM2 приходит 0,83В
На PCM1 напряжение скачет: 0,73--0,82В
Может из-за того, что DM3 не правильно впаял, FSDM0365 не пережила такой поворот событий? ) |
|
vadim3008
Мастер Добрых Дел
Сообщения: 5819
|
| stunit, не рано ты начинаешь ремонтировать,может начать из чего попроще,утюгов например? |
|
mehanik93
Завсегдатай
Сообщения: 531
|
stunit, ерунда какая то , у тебя секция автовольтажа имеется ? Если да , то отключи её и всё  |
|
|
stunit
|
| vadim3008 писал: | | stunit, не рано ты начинаешь ремонтировать,может начать из чего попроще,утюгов например? |
В самый раз. Утюги меня не привлекают. И не ремонтник я
ДОБАВЛЕНО 03/02/2019 16:59
| mehanik93 писал: | stunit, ерунда какая то , у тебя секция автовольтажа имеется ? Если да , то отключи её и всё  |
Автовольтаж - это вы про вот это говорите? http://joxi.ru/eAOl8bpI96plDr
Ее отключить? |
|
mehanik93
Завсегдатай
Сообщения: 531
|
stunit, она то она, но как бы ни было прискорбно констатировать ....в схемах вы разбираетесь, как я в балете Это вы ему вход отрубили , а надо восстановить цепь после диодного моста . |
|
|
stunit
|
| mehanik93 писал: | stunit, она то она, но как бы ни было прискорбно констатировать ....в схемах вы разбираетесь, как я в балете Это вы ему вход отрубили , а надо восстановить цепь после диодного моста . |
Не совсем вас понял. Про какую цепь вы говорите? |
|