ESpec - мир электроники для профессионалов


МЦ LG LX-330

  Список форумов » Музыкальные центры и усилители

Следующая тема · Предыдущая тема
АвторСообщение
dehkanin 
Новичок
Сообщения: 11
 
Сообщение #1 От 23/07/2019 22:06 цитата  

Никак не могу справиться с CD частью этого музыкального центра.
Внешние признаки:
а) изначально:
- не горит луч лазера;
- не читается диск (no disk);
-при включении двигатель вращения диска начинал вращение и останавливался.
б) Заменил часть с лазером и двигателями -без результата.
в) Заменил драйвер (мксх FAN8039BD.
Стало ещё хуже, т.е.
- двигатель трэя перестал включаться, хотя на индикаторе "open", "close" высвечиваются;
- двигатель трэя перемещает тарелку в конец и не выключается, продолжает работать, т.е. шестеренки крутятся и прокручиваются с треском;
- лазер по-прежнему не горит.
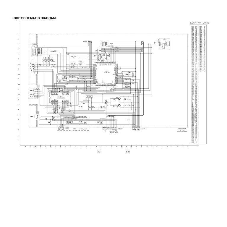
Напряжения замеренные на разъёмах PN503 показали что там где "SP-" на самом деле "+".

  Page_00024_сжат.jpg  53.32 КБ  Скачано: 270 раз(а)
pasha-4 
Участник
Сообщения: 152
 
Сообщение #2 От 24/07/2019 05:36 цитата  

Ну теперь поставь старый драйвер обратно
birluk 
Передовик
Сообщения: 2209
birluk
 
Сообщение #3 От 24/07/2019 10:20 цитата  

dehkanin писал:

- не горит луч лазера;

- лазер по-прежнему не горит.
Глазом смотрел? Смотри через камеру сот тлф. Шлейф заменен? Линза чистая?

ДОБАВЛЕНО 24/07/2019 11:24

dehkanin писал:

б) Заменил часть с лазером и двигателями -без результата.
откуда уверенность в исправности лазера и двигателя(лей)? P/S Измерения уже не нужны? Установи модуль и не мучайся c CD форматом с 12ю песнями: https://ru.aliexpress.com/popular/usb-bluetooth-module.html
dehkanin 
Новичок
Сообщения: 11
 
Сообщение #4 От 27/08/2019 17:57 цитата  

"...Установи модуль и не мучайся c CD форматом..."
Если я правильно понимаю, одна эта панель заменит весь музыкальный центр?
Т.е. и приемник тоже?

Перейти: 
Следующая тема · Предыдущая тема
Показать/скрыть Ваши права в разделе

Интересное от ESpec


Другие темы раздела Музыкальные центры и усилители



Rambler's Top100 Рейтинг@Mail.ru liveinternet.ru