| Автор | Сообщение |
|
ivbragar
|
| Ремонтирую первый раз такой девайс. При подачи питания срабатывает двигатель транспортировки CD пожужит секунд 10 изамолкает. При этом панель не светится. Пробовал вставить диск заглатывает устанавливает на привод, диск при этом не прокручивается.Если нажать на кнопку выплевывает диск, другие кнопки не реагируют на нажатие. Заменил стабилизатор ВА4911 ничего не дало. Напряжения на стабилизаторе при подаче питания 1-0в 2-0в 3-0в 4-0в 5-0в 6-8в 7-13в 8-5в 9-12в 10-2в 11-0в 12-0в. Подскажите что надо еще проверить? Микроконтролер UPD780058GC499. |
|
igme
Передовик
Сообщения: 1126
|
"другие кнопки не реагируют на нажатие"
Уверены, что ему не нужны никакие дополнительные сигналы по шине, если она есть? Например от усилителя? Потому как CD-плеер от Crysler, про который я писал одну тему назад - тоже полностью функционировал будучи подключённым в машине, а на столе только показывал часы и давал вставить\вытащить диск. Убедитесь, что дело не в этом, чтобы не ремонтировать неисправность, которой возможно нет  |
|
|
ivbragar
|
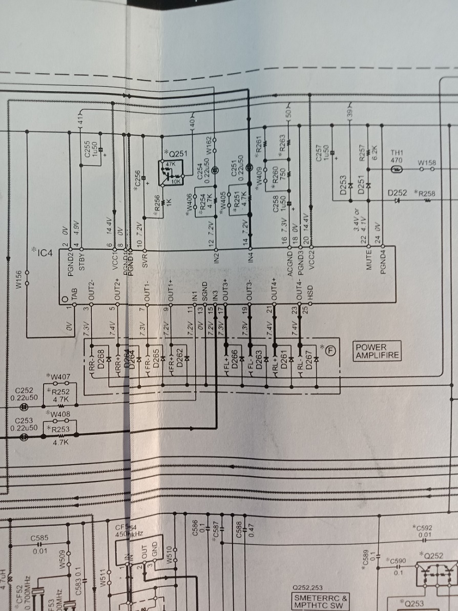
Усилитель TDA7386 стоит на этом девайсе. По даташиту усилитель только управляетс микроконтролером по шине ST-BY и MUTE. Как контролер проверяет усилитель и другие устройства подскажите пожалуйста.
| IMG20210915154019.jpg |
| Описание: |
|
| Размер файла: |
347.02 КБ |
| Просмотрено: |
174 раз(а) |

|
| IMG20210915154044.jpg |
| Описание: |
|
| Размер файла: |
367.4 КБ |
| Просмотрено: |
193 раз(а) |

|
|
|
|
kohman2
|
| А кнопки на утечку проверял? |
|
igme
Передовик
Сообщения: 1126
|
"Усилитель TDA7386 стоит на этом девайсе"
Я не про то имел в виду, а про то, что может в машине есть ОТДЕЛЬНЫЙ блок усилителя, а в самом плеере это только предусилитель, например, ну или даже если нет отдельного в машине - ну может какой сигнал от общей CAN-шины нужен этой магнитоле, чтобы она поняла, что она полностью подключена. Ну просто очень похоже на мой случай (вы внимательно читали, что я написал?), я только на это обратил внимание... |
|
TO(Nic)
Завсегдатай
Сообщения: 996
|
| Оба питания подаете на аппарат B+, ACC ? |
|
birluk
Передовик
Сообщения: 2209
|
| Так это простая балалайка, какая тут СAN- шина? |
|
jurij+
Фанат форума
Сообщения: 30576
|
Да, про саn шину было интересно...
Так жестко не надо больше. |
|
igme
Передовик
Сообщения: 1126
|
Я это фигурально, подразумевая "какой-то внешний сигнал, разрешающий включение или опрос внешнего устройства, по какой-то сигнальной линии ВООБЩЕ, не обязательно CAN"... Так как не специализируюсь на авто, вполне допустил, что это может быть. Не, я не понял, а я что ПРИНЦИПИАЛЬНО не прав? Магнитола не может принимать сигналы CAN-шины (или отдавать их)?? Вот у знакомого Reno Duster кажется так там на дисплей выводится инфо о данных поездки, температура за бортом, ещё что-то... Это всё берётся именно с CAN-шины стопудов...
Кстати, jurij+, раз вы явно спец по магнитолам, к слову. У меня почему на столе плеер от Crysler не работает полноценно, ы? |
|
jurij+
Фанат форума
Сообщения: 30576
|
igme, в данном случае это обычный старый ширпотреб от Kenwood бюджетной серии, не имеющий ничего общего с оригинальными штатными аудиосистемами авто.Схема у топикстара есть, надеюсь разберется.
Chrysler ??? Нет предмета разговора(конкретики). да и не в данной теме. |
|
birluk
Передовик
Сообщения: 2209
|
| Цитата: | | Не, я не понял, а я что ПРИНЦИПИАЛЬНО не прав? Магнитола не может принимать сигналы CAN-шины (или отдавать их)? | может,только не в данной балалайке. |
|
|
ivbragar
|
| Здравствуте все кто принимал участие в данной теме. Магнитолу запустил а причина оказалась банальная не внимательность. Попутал при подключении ножку 13 (ACC) с 11(P-CON) но это уже в прошлом. В принципе я её ремотировал для подлючения Bluetooth.Все сделал как показано в этом видеоролике на ютубе https://www.youtube.com/watch?v=QK01h6Yk4K4 но резултат оказался нулевым. Я так думаю что мкроконтролер не прошит под функцию подключения сд ченжера. На плате место есть под разьём я детали добавил которые не хватало а на панели я эту функцию так и не нашел.Ну а если по конкретнее то по схеме (https://remont-aud.net/load/car_audio/64-1-0-1198) питание с 3 ножки через резистор 3-10 кОм на ножку 9, через резистор R408 4.7k, стабилизатор D404 уменьшает до 5 вольт и подает это напряжение на 63 ножку микропроцесора IC1. А там этого напряжения нет. По схеме между резистором R408 и микропроцесором стоит перемычка. Если перемычку отключить 5в есть, если подключаеш то садятся. Потому я пришел к выводу что на этой модели прошивка не предусматривает подключение сд ченжера. Если я не прав буду рад исправится с вашей помощъю. Ну а так тему считаю законченой и закрытой. Всем спасибо. |
|