| Автор | Сообщение |
|
alex.net
|
электро щиток для дома. Кто имеет полную схему подключения
эл.щитка со всей автоматикой защиты в том числе узип (грозовые авт.),
УЗО, и тому подобное оборудование - просьба подскажите схему сборки пл. |
|
БЕЗЫМЯННЫЙ
Бегущий по граблям
Сообщения: 7608
|
| mastercity.ru в разделе электрика погляди например. |
|
rematik
Флудоголик
Сообщения: 35541
|
| А [url=http://www.mastercity.ru/showthread.php/76653-%D9%E8%F2%FB-(%D3%C7%CE-%E0%E2%F2%EE%EC%E0%F2%FB-%F1%F7%B8%F2%F7%E8%EA%E8-%CE%CF%CD-%E8-%EF%F0.).-%D1%F1%FB%EB%EA%E8-%F6%E8%F2%E0%F2%FB.?p=1923603]во[/url]. |
|
|
alex.net
|
rematik большое спасибо,много разного интересного - но схемы нет. Еще раз объясняю электрощиток где стоят щётчик, узо+опс+цифровой барьер+автоматы,индикаторы,розетка,и т.п.
Нигде нет конкретной схемы как правильно положино по нормам ДБН. Эта тема связана стем что представители РЕСа нехотят принимать щиток и пломбировать,ссылаясь на свои какие-
то нормы.
ДОБАВЛЕНО 27/08/2010 17:09
БЕЗЫМЯННЫЙ ,Тоже спасибо- но схем сборки нет. Везде предлагаются схемы на конкретное оборудование (как подключать УЗО , автомат,итд,) А нужна последовательная схема. |
|
kapral_82
Завсегдатай
Сообщения: 440
|
| Цитата: | | Еще раз объясняю электрощиток где стоят щётчик, узо+опс+цифровой барьер+автоматы,индикаторы,розетка,и т.п. |
Уважаемый,обычно за такие схемы деньги берут и перед разработкой делается ТЗ в котором четко пишеться что должно стоять,что должно делать и т.д. |
|
|
alex.net
|
kapral -да ты прав...но мы на форуме обращаемся за помощью а не за услугой, - поэтому есть разница.  |
|
KRAB
Распугиватель клиентов
Сообщения: 21704
|
| alex.net писал: | | мы на форуме обращаемся за помощью а не за услугой | - ты знаешь - услуга-услуге --- рознь ... Разработай мне с чертежами под ключ, например, схему "умного дома" - правда это не сложно ...  |
|
Електро
Завсегдатай
Сообщения: 842
|
| alex.net писал: | rematik большое спасибо,много разного интересного - но схемы нет. Еще раз объясняю электрощиток где стоят щётчик, узо+опс+цифровой барьер+автоматы,индикаторы,розетка,и т.п.
Нигде нет конкретной схемы как правильно положино по нормам ДБН. Эта тема связана стем что представители РЕСа нехотят принимать щиток и пломбировать,ссылаясь на свои какие-
то нормы.
ДОБАВЛЕНО 27/08/2010 17:09
БЕЗЫМЯННЫЙ ,Тоже спасибо- но схем сборки нет. Везде предлагаются схемы на конкретное оборудование (как подключать УЗО , автомат,итд,) А нужна последовательная схема. |
Вот тебе, ссылка, пользуйся, учись. http://www.electrik.org/forum/index.php?act=SF&s=&f=22 http://www.mega-faza.ru/sxemaelektrosnab.html
А, для выполнение электромонтажных работ, всё же нужно обращаться к специалисту, дабы избежать всяких не приятностей. |
|
|
alex.net
|
| KRAB - Не принимай все блиско к сердцу ,речь идет о том-что может кто-то имеет готовую схему, а не делать под заказ за деньги услугу. А что касаемо твоей просьбы схемы "умного дома" то у меня ее нет, но если-бы она тебе действительно была нужна то поверь ты-бы её нашел на этом полезном форуме. "мир не без добрых Людей" - Но Мир такой - какой ты сам... |
|
KRAB
Распугиватель клиентов
Сообщения: 21704
|
| alex.net писал: | | ты-бы её нашел на этом полезном форуме | - - - -  |
|
|
alex.net
|
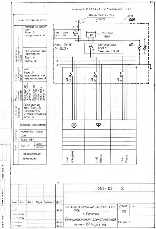
"мир не без добрых Людей" - Помогли!
ДОБАВЛЕНО 28/08/2010 19:31
РЕШЕНО.
СХЕМА ЭЛ.ЩИТКА.jpg 121.46 КБ Скачано: 4234 раз(а)
|
|