| Автор | Сообщение |
|
Kadzak
|
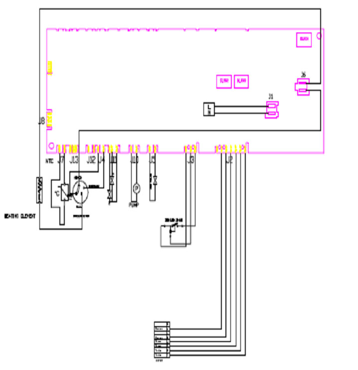
Vestel WM834T.
Запустил модуль (55).
Включаю на столе голым, выдает Е01 (УБЛ).
Замыкаю контакты УБЛ - переходит в Е04.
До установки в СМА есть пару дней, решил поизгаляться..
На контакты помпы подцепил галогенку 220/50 (Е04 ушла).
На разъеме прессостата только два контакта - "пусто" и "перелив".
Цепляю на них 2х-позиционный тумблер.
Включаю первую программу с положением переключателя в позиции "перелив".
Сразу срабатывает помпа (загорается галогенка), при переключении в "пусто" помпа отключается.
--
Вопрос к знатокам этого модуля:
Где сидит контакт прессостата "Полный бак" или Как его сымитировать?
По идее, при запуске программы стирки с переключателем в "пусто" и последующим переключением в "Полный бак", должен включиться ТЭН (еще одна контролька).
--
ЗЫ: На фото контакты прессостата: PS-E и PS-OVF.
| Vestel WM834T (Модуль 55).jpg |
| Описание: |
|
| Размер файла: |
324.22 КБ |
| Просмотрено: |
543 раз(а) |

|
|
|
mr.black
Завсегдатай
Сообщения: 986
|
Если правильно помню, там на пресс 3 контакта. Вроде вот так.
Без-имени-1.jpg 40.21 КБ Скачано: 765 раз(а)
|
|
cybe
Фанат форума
Сообщения: 12800
|
| Kadzak писал: | | По идее, при запуске программы стирки с переключателем в "пусто" и последующим переключением в "Полный бак", должен включиться ТЭН | вот тута и твоё зарыто  |
|
|
Kadzak
|
| mr.black писал: | | Вроде вот так. |
Так и подозревал, что через контакты ТЭНа.
Посмотрел еще раз маркировку на плате - действительно у переключателя программ есть подпись "PS_C".
Спасибо) |
|
xarl
Модератор
Сообщения: 21874
|
Kadzak, с темой то что делать?  |
|
|
Kadzak
|
| Нужную инфу я получил, можно закрывать. |
|
Мелиор
Старший модератор
Сообщения: 35645
|
| Kadzak писал: | | Нужную инфу я получил, можно закрывать. | Так закрывай |
|